Foto woning Veldhaarweg 2 1
Bekijk alle foto’s
No items found.
No items found.
No items found.
No items found.
Beschikbaar
Veldhaarweg 2, Enschede
B
549000
p.m.
k.k.
3 slaapkamers
Bouwjaar 1992
105 m² woonoppervlakte
Energielabel B
Weet je een potentiële koper?
Bekijk de unieke website
Ben je geïnteresseerd in deze woning?
Neem contact op
Kenmerken
Omschrijving

Veldhaarweg 2 te Enschede. Levensloopbestendig wonen in het buitengebied van Enschede!

Welkom aan de Veldhaarweg 2 in Enschede. Een unieke plek waar comfort, rust en natuur samenkomen. Deze vrijstaande woning ligt in het prachtige buitengebied, direct bij het populaire recreatiegebied Het Rutbeek. Hier woon je te midden van het groen, op een royaal perceel van maar liefst 1.260 m² eigen grond, met volop privacy, ruimte en vrijheid om te genieten van het buitenleven.

De woning is levensloopbestendig ingericht en biedt alles wat je nodig hebt om gelijkvloers te kunnen wonen. Op de begane grond bevinden zich namelijk zowel de slaapkamer als de badkamer, waardoor deze woning uitermate geschikt is voor wie voorbereid wil zijn op de toekomst, maar ook voor gezinnen of stellen die graag buitenaf wonen met comfort en gemak.

Binnen kom je via een ruime en lichte hal die toegang biedt tot de slaap- en badkamer, het toilet en de leefruimte. De slaapkamer op de begane grond is voorzien van een vaste kastenwand. De badkamer is ruim opgezet en beschikt over een inloopdouche, ligbad, urinoir en een modern wastafelmeubel. De woonkamer is licht en sfeervol, met een prachtig uitzicht op het omringende groen. Aansluitend bevindt zich de open keuken, voorzien van een nette inbouwkeuken met diverse apparatuur. Vanuit de woonkamer is zowel de verdieping als de kelder bereikbaar.

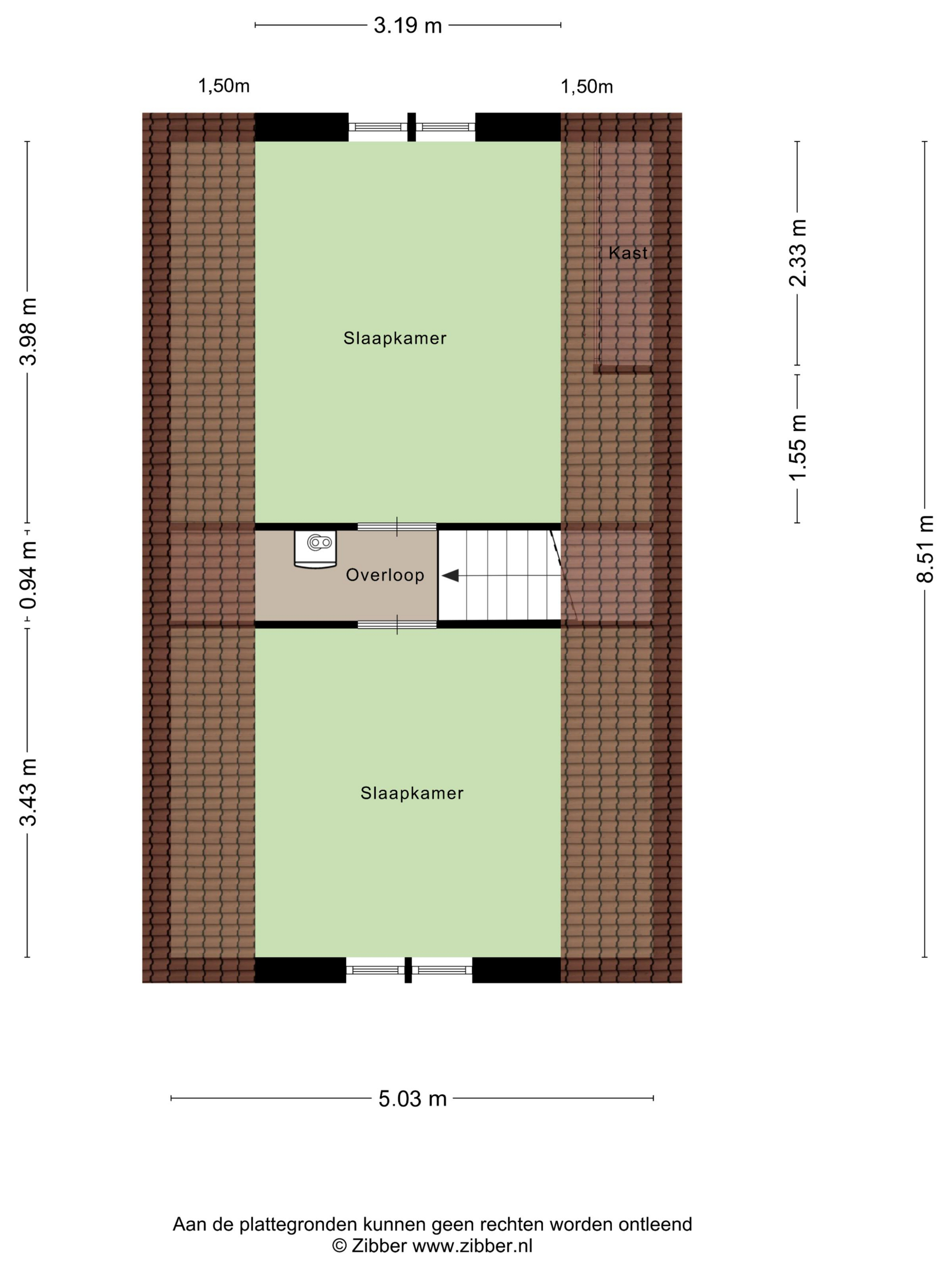
Een bijzonder pluspunt is de volledig onderkelderde woning: een royale, multifunctionele ruimte die ideaal is als hobbyruimte, werkplaats, opslag of zelfs als sportruimte. De eerste verdieping telt nog twee slaapkamers en een overloop met de opstelplaats voor de CV-ketel, perfect als logeerkamers, werkkamers of extra bergruimte.

De woning is goed onderhouden en voorzien van diverse duurzame verbeteringen. Zo beschikt zij over spouwmuurisolatie, vloerisolatie met vloerverwarming, HR-glas en maar liefst 16 zonnepanelen. Dit draagt niet alleen bij aan het wooncomfort, maar ook aan een gunstige energierekening.

Buiten is het puur genieten. Het perceel is volledig beschut en omgeven door volwassen bomen, waardoor je het gevoel hebt midden in het bos te wonen. De tuin biedt volop mogelijkheden voor tuinliefhebbers of gezinnen die graag buiten leven: van een zonnig terras tot speelruimte of een moestuin. Er is ruime parkeergelegenheid aanwezig op eigen terrein, inclusief carport, en daarnaast beschikt het perceel over een vrijstaande berging.

Veldhaarweg 2 biedt het beste van twee werelden: wonen in alle rust, omgeven door natuur, en toch op korte afstand van alle voorzieningen. Winkels, scholen en openbaar vervoer bevinden zich op enkele minuten rijden, net als de uitvalswegen richting Enschede, Haaksbergen en de rest van Twente.

Een unieke kans voor wie op zoek is naar vrijheid, ruimte en levensloopbestendigheid in een schitterende, groene omgeving!

Bijzonderheden:
- Bouwjaar: 1992 (is de woning verbouwd).
- Woonoppervlakte: 105 m². Oppervlakte overig inpandig: 41 m².
- Inhoud: 541 m³.
- Perceeloppervlakte: 1.260 m².
- Energielabel B.
- Levensloopbestendige indeling met slaap- en badkamer op de begane grond.
- Twee extra slaapkamers op de verdieping.
- Volledig onderkelderd; multifunctionele ruimte voor hobby, werk of opslag.
- Voorzien van spouwmuur- en vloerisolatie met vloerverwarming, HR-glas en 16 zonnepanelen.
- Riant, beschut perceel met veel privacy en omgeven door volwassen groen.
- Ruime parkeergelegenheid met carport en vrijstaande berging.
- Gelegen in het prachtige buitengebied van Enschede nabij recreatiegebied Het Rutbeek.
- Rustig wonen met goede bereikbaarheid richting Enschede, Haaksbergen en uitvalswegen.

Aanvaarding: in overleg en kan op korte termijn.

In de koopovereenkomst zullen de navolgende zaken worden opgenomen:
- Schriftelijkheidsvereiste: partijen zijn pas gebonden niet eerder dan dat er een schriftelijke koopovereenkomst is getekend door partijen.
- Ouderdomsclausule.
- Asbestclausule.
- Niet-zelfbewoningsclausule.
- As is where is clausule.
- Het stellen van een bankgarantie/waarborgsom ter grootte van 10% van de koopsom.

Interesse in dit huis? Schakel direct uw eigen NVM- aankoopmakelaar in. Uw NVM- aankoop makelaar komt op voor uw belang en bespaart u tijd, geld en zorgen.
Adressen van collega NVM- aankoopmakelaars in Twente vindt u op de website van NVM Twente. 

Algemeen
Koopprijs
549000
p.m.
k.k.
Status
Beschikbaar
Aanvaarding
In overleg
Energierapport
Energieklasse
B
Isolatie
Muurisolatie, Vloerisolatie, Hr glas
Verwarming
Cv ketel, Vloerverwarming gedeeltelijk
Warm water
Cv ketel
CV-ketel
Combi hr
Bouw
Soort woning
Woonhuis
Soort dak
Zadeldak
Bouwjaar
1992
Voorzieningen
Mechanische ventilatie, Rolluiken, Tv kabel, Zonnepanelen
Indeling
Aantal slaapkamers
3
Aantal badkamers
1
Buitenruimte
Tuintypen
Tuin rondom
Ligging tuin
Totale oppervlakte
Oppervlakte en inhoud
Woonoppervlakte
105 m²
Gebonden buitenruimte
1 m²
Perceeloppervlakte
1260 m²
Inhoud
541 m³
Parkeren
Soorten
Op eigen terrein
Soort garage
Geen garage
Locatie
Adres
Veldhaarweg 2
Postcode
7546 RJ
Plaats
Enschede
Provincie
Ligging
Aan rustige weg, Vrij uitzicht, Beschutte ligging, Buiten bebouwde kom, In bosrijke omgeving
Berging
Soort
Vrijstaand hout
Plattegronden
No items found.
De omgeving
Voorzieningen in de buurt
Locatie
Supermarkt
Eten & drinken
Middelbare school
Basisschool
Openbaar vervoer
Interesse?
Vul onderstaand formulier in  en wij nemen contact op.
Naam *
E-mailadres *
Telefoonnummer *
Bericht
Thank you! Your submission has been received!
Oeps! Er is iets misgegaan bij het verzenden van het formulier.
Op zoek naar een nieuwe woning?
Schrijf je in als woningzoekende en word als eerste op de hoogte gebracht van het nieuwe aanbod.
Schrijf je nu in
Op zoek naar een nieuwe woning?
Word als eerste op de hoogte gebracht van het nieuwe aanbod.
Bedankt voor je inschrijving!
We bezorgen het nieuws in jouw inbox
Oeps! Er is iets misgegaan bij het verzenden van het formulier.