
Poolmansweg 148, Enschede. Een karakteristieke jaren ’30 twee-onder-een-kapwoning
Gelegen in de geliefde woonwijk Stadsveld staat deze sfeervolle jaren ’30 woning te koop, gesitueerd op een royaal perceel van 324 m². De woning ademt op vele punten nog de charme van de jaren ’30, met onder andere granitovloeren, glas-in-loodramen, en-suite deuren, paneeldeuren en hoge vloerplinten.
De woning verkeert in een redelijke staat van onderhoud, maar biedt ruimte voor modernisatie en persoonlijke inrichting. Hier ligt dus een unieke kans om een woning volledig naar eigen smaak te transformeren en er jouw thuis van te maken. In totaal zijn er vier slaapkamers aanwezig, wat deze woning ideaal maakt voor gezinnen.
De achtertuin is uitzonderlijk diep en ligt op het noord-oosten, met volop mogelijkheden voor tuinliefhebbers. De tuin is voorzien van een aangebouwde stenen berging, vrijstaande houten overkappingen en is bereikbaar via een eigen achterom.
De ligging is zeer gunstig, midden in Stadsveld, met diverse (basis)scholen, sportvoorzieningen, speelvoorzieningen, winkelcentra en uitvalswegen in de directe omgeving. Het bruisende stadscentrum van Enschede is eenvoudig en snel bereikbaar met de auto, fiets of het openbaar vervoer.
Indeling
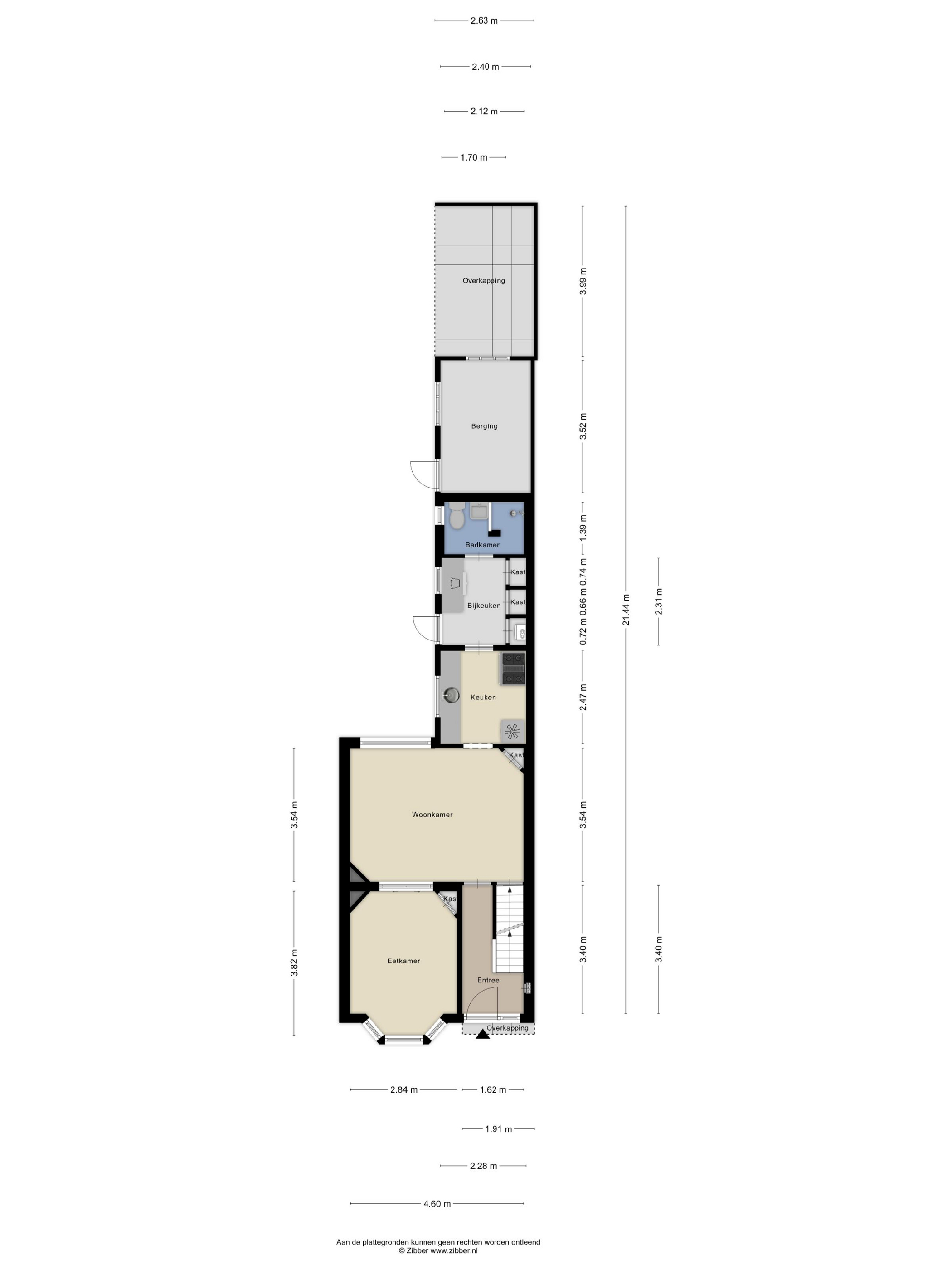
Op de begane grond betreed je de woning via een overdekte entree naar de hal met granitovloer, gestucte wanden en plafond, voorzien van een meterkast. De woonkamer ademt de jaren ’30-sfeer uit met parketvloer, een kelderkast en en-suite deuren. De dichte keuken is gedateerd maar functioneel, met een granitovloer. Vanuit de bijkeuken met inbouwkast en opstelplaats voor HR-combiketel, heb je toegang tot de tuin. De badkamer is voorzien van een inloopdouche, staand toilet en wastafel.
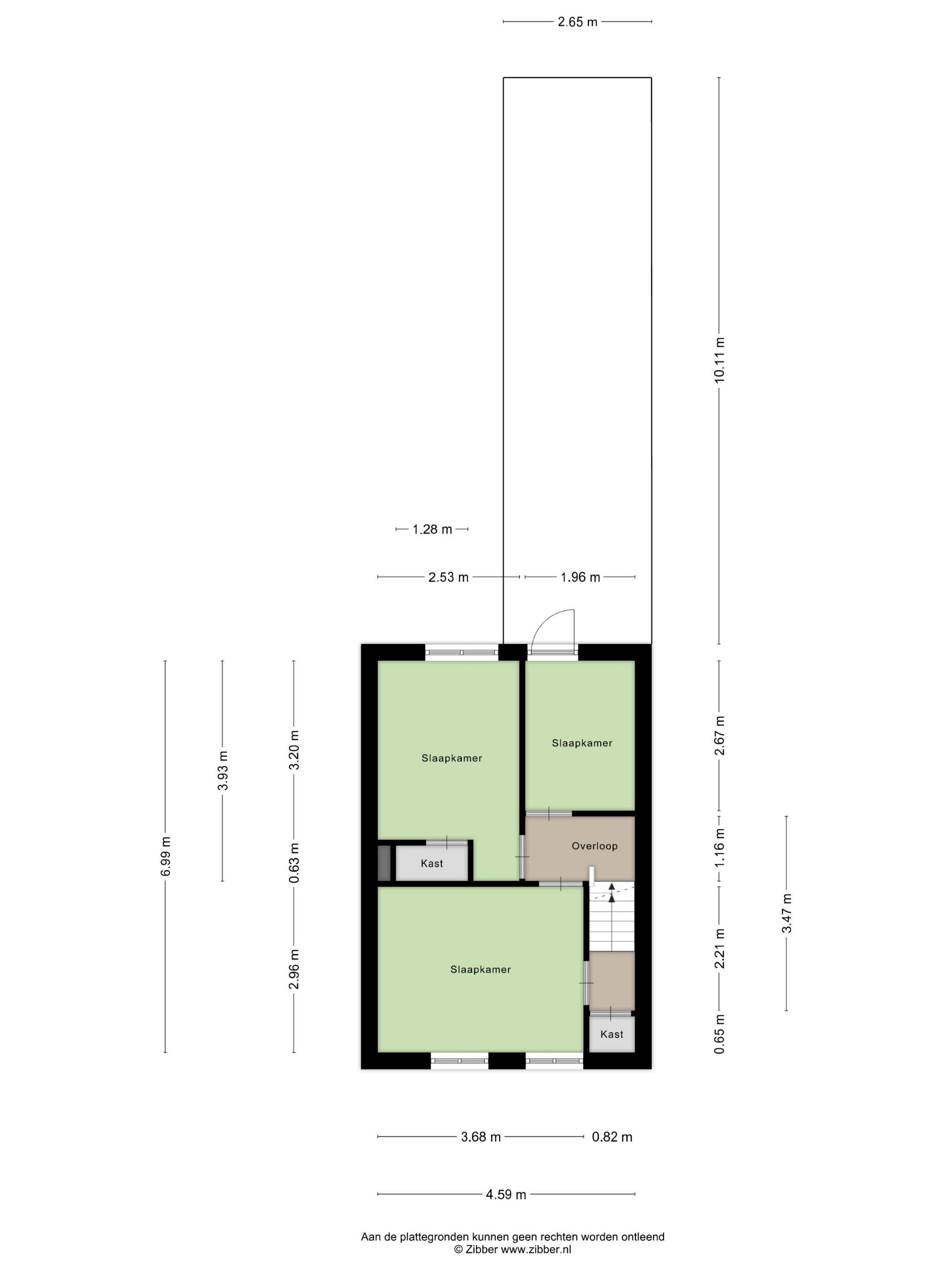
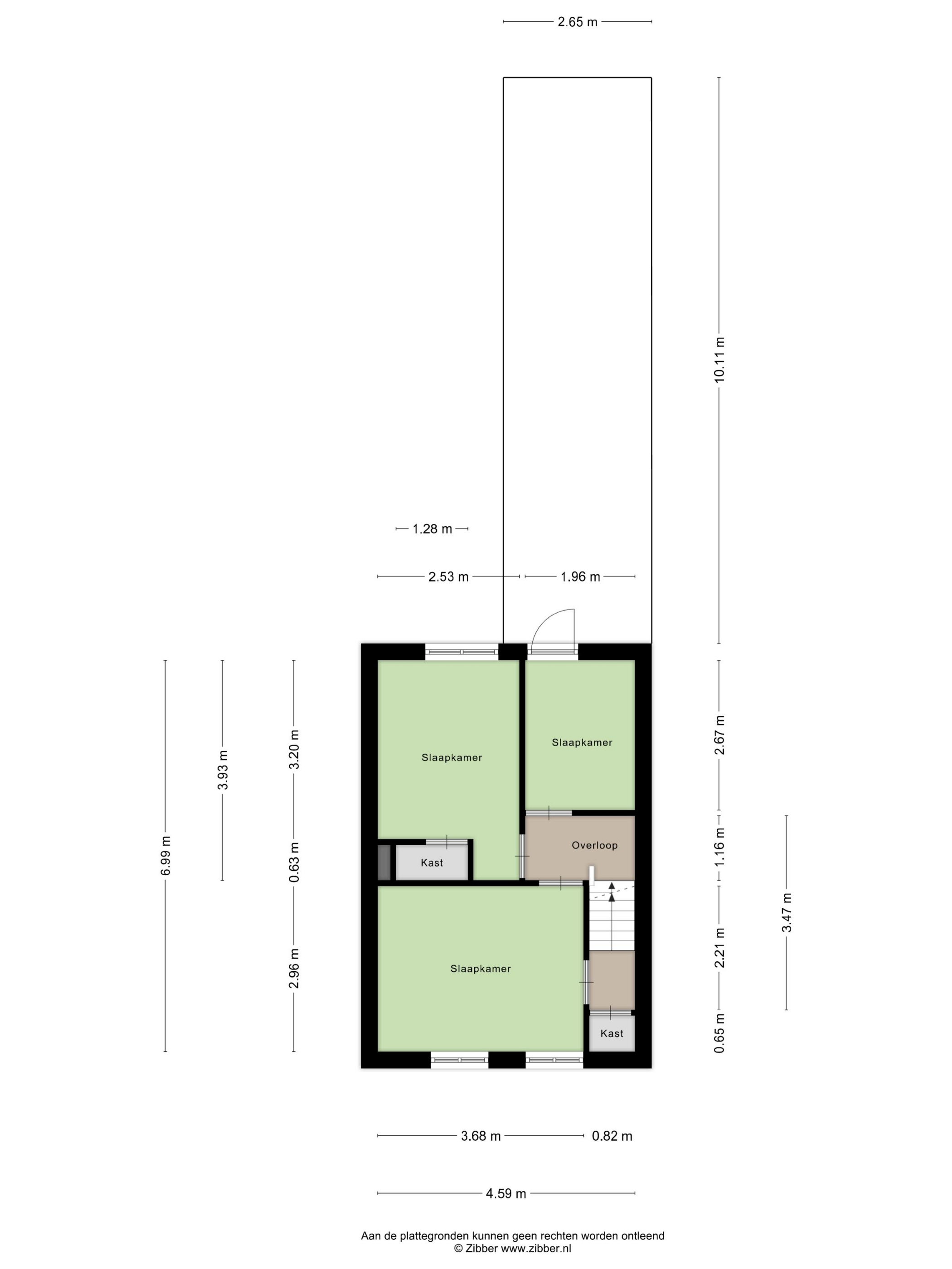
Op de eerste verdieping bevinden zich drie slaapkamers, elk met laminaatvloer en eigen karakteristieke afwerking. Eén slaapkamer heeft een inbouwkast. Vanuit de derde slaapkamer is er een vaste trap naar de tweede verdieping. De tweede verdieping biedt een open ruimte met bergruimte achter de knieschotten en een dakraam voor natuurlijk licht. Geschikt om als vierde slaapkamer te gebruiken.
Kortom, Poolmansweg 148 combineert karakter, ruimte en een toplocatie in Stadsveld. Een woning met charme die wacht op een eigenaar die hem weer helemaal laat stralen.
- Bouwjaar: 1937.
- Woonoppervlakte: 93m²
- Inhoud: 360 m³
- Perceeloppervlakte: 324 m²
- Karakteristieke jaren ’30 twee-onder-een-kapwoning met veel originele details zoals granitovloeren, glas-in-loodramen, en-suite deuren en hoge vloerplinten.
- Vier slaapkamers, ideaal voor gezinnen, met mogelijkheid tot extra indeling op de tweede verdieping.
- Ruime en diepe achtertuin op het noord-oosten met aangebouwde stenen berging, vrijstaande houten overkappingen en eigen achterom.
- Redelijk onderhouden woning met mogelijkheden tot modernisatie en persoonlijke inrichting.
- Rustige ligging in de gewilde woonwijk Stadsveld, nabij scholen, speelvoorzieningen, sportfaciliteiten, winkelcentra en uitvalswegen.
- Snel en eenvoudig bereik van het stadscentrum van Enschede via auto, fiets of openbaar vervoer.
In de koopovereenkomst zullen de navolgende zaken worden opgenomen:
- Schriftelijkheidsvereiste: partijen zijn pas gebonden niet eerder dan dat er een schriftelijke koopovereenkomst is getekend door partijen.
- Ouderdomsclausule.
- Asbestclausule.
- Opkoopbescherming.
- Het stellen van een bankgarantie/waarborgsom ter grootte van 10% van de koopsom.
Aanvaarding: in overleg.
Interesse in dit huis? Schakel direct uw eigen NVM- aankoopmakelaar in. Uw NVM- aankoop makelaar komt op voor uw belang en bespaart u tijd, geld en zorgen.
Adressen van collega NVM- aankoopmakelaars in Twente vindt u op de website van NVM Twente.