Foto woning Theo van Doesburgstraat 29 1
Bekijk alle foto’s
No items found.
No items found.
No items found.
No items found.
Beschikbaar
Theo van Doesburgstraat 29, Enschede
A
495000
p.m.
k.k.
4 slaapkamers
Bouwjaar 1993
127 m² woonoppervlakte
Energielabel A
Weet je een potentiële koper?
Bekijk de unieke website
Ben je geïnteresseerd in deze woning?
Neem contact op
Kenmerken
Omschrijving

Wonen in de geliefde wijk ’t Zwering betekent genieten van rust, ruimte en groen en precies dat vind je hier aan de Theo van Doesburgstraat 29 in Enschede.

Deze verzorgde en royale hoekwoning biedt alles wat je zoekt: ruimte, comfort, duurzaamheid en een ligging die zowel rustig als centraal is. De woning is in het verleden zowel aan de voorzijde als aan de achterzijde uitgebouwd, waardoor een verrassend ruime leefruimte is ontstaan. Dankzij de lichte woonkamer met sfeervolle erker en de royale woonkeuken aan de tuinzijde is dit een huis waar gezelligheid en praktisch wonen perfect samenkomen.

Bij binnenkomst valt direct de ruime hal op die toegang geeft tot de lichte, straatgerichte woonkamer. De erker zorgt voor extra lichtinval en creëert een prettige zithoek. Via de tussenhal met vernieuwd hangend toilet en fonteintje (2023) kom je in de royale, uitgebouwde woonkeuken. Deze leefkeuken is het hart van het huis, een heerlijke plek waar je samen eet, werkt of geniet van een kop koffie met uitzicht op de tuin. De keuken is modern uitgevoerd en voorzien van diverse inbouwapparatuur (2019). De openslaande tuindeuren zorgen voor een naadloze verbinding met buiten. Aangrenzend bevindt zich een praktische bijkeuken met toegang tot de tuin.

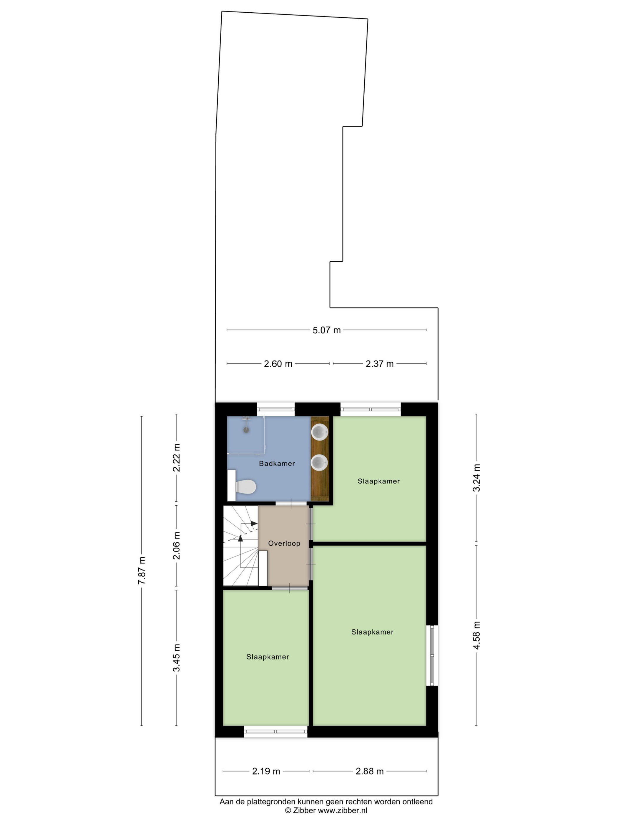
Op de eerste verdieping bevinden zich drie goed bemeten slaapkamers, elk met een prettige lichtinval. De moderne badkamer, eveneens vernieuwd in 2023, is stijlvol ingericht met een inloopdouche, hangend toilet en een dubbele wastafel in meubel.

De tweede verdieping is bereikbaar via een vaste trap en biedt een ruime overloop met airconditioning, groot dakraam, aansluitingen voor witgoed en handige bergruimte achter de knieschotten. Daarnaast bevindt zich hier de vierde slaapkamer, eveneens met dakraam, en toegang tot een praktische bergvliering.

Ook buiten is het volop genieten. De fraaie, op het oosten gelegen achtertuin is breed van opzet, biedt veel privacy en is verzorgd aangelegd. Aan de zijkant van het perceel bevindt zich een prachtige vrijstaande houten overkapping met glazen schuifwanden en een gezellige houtkachel, een heerlijke plek om het hele jaar door te ontspannen. Daarnaast zijn er twee houten bergingen aanwezig en is de tuin bereikbaar via een eigen achterom. Aan de voorzijde beschik je over een eigen oprit, wat het parkeren bijzonder comfortabel maakt.

De woning is energiezuinig en toekomstbestendig. Vanuit de bouw volledig geïsoleerd, voorzien van 20 zonnepanelen, 2 airco’s en een waterontharder, wat resulteert in een energielabel A. Dankzij de moderne afwerking en recente vernieuwingen, waaronder de keuken, badkamer en het toilet in 2023, is deze woning volledig instapklaar.

De ligging is ideaal: rustig, maar met alle voorzieningen binnen handbereik. Aan de westkant van Enschede woon je hier op korte afstand van uitvalswegen zoals de A35, met het bruisende stadscentrum op slechts tien minuten fietsen. Winkelcentrum Stadsveld met supermarkt, gezondheidscentrum en diverse scholen ligt om de hoek. Voor wie van natuur en recreatie houdt, zijn het Rutbeek en de groene omgeving van Boekelo vlakbij, perfect voor een wandeling, fietstocht of sportieve activiteit.

Theo van Doesburgstraat 29 is een woning waarin alles samenkomt: ruimte, comfort, duurzaamheid en een heerlijke ligging. Hier kun je zonder klussen direct genieten van je nieuwe thuis.

Bijzonderheden:
- Bouwjaar: 1993.
- Woonoppervlakte: 127 m2
- Inhoud: 451 m3
- Perceelsoppervlakte: 231 m2.
- Zowel aan de voor- als achterzijde uitgebouwd voor extra woonruimte.
- In uitstekende staat van onderhoud.
- Volledig geïsoleerd en voorzien van energielabel A.
- Voorzien van 20 zonnepanelen.
- Twee airco’s en een waterontharder aanwezig.
- Moderne keuken vernieuwd in 2019.
- Badkamer en toilet vernieuwd in 2023.
- Vier ruime slaapkamers, ideaal voor gezinnen.
- Brede, op het oosten gelegen tuin met veel privacy.
- Vrijstaande houten overkapping met glazen schuifwanden en houtkachel.
- Twee houten bergingen en een eigen achterom.
- Eigen oprit op eigen perceel.
- Gelegen in een rustige, kindvriendelijke woonomgeving in de geliefde wijk ’t Zwering.

In de koopovereenkomst zullen de navolgende zaken worden opgenomen:
- Schriftelijkheidsvereiste: partijen zijn pas gebonden niet eerder dan dat er een schriftelijke koopovereenkomst is getekend door partijen.
- Ouderdomsclausule.
- Het stellen van een bankgarantie/waarborgsom ter grootte van 10% van de koopsom.

Aanvaarding: in overleg.

Interesse in dit huis? Schakel direct uw eigen NVM- aankoopmakelaar in. Uw NVM- aankoop makelaar komt op voor uw belang en bespaart u tijd, geld en zorgen.
Adressen van collega NVM- aankoopmakelaars in Twente vindt u op de website van NVM Twente.

Algemeen
Koopprijs
495000
p.m.
k.k.
Status
Beschikbaar
Aanvaarding
In overleg
Energierapport
Energieklasse
A
Isolatie
Volledig geisoleerd
Verwarming
Stadsverwarming, Vloerverwarming gedeeltelijk
Warm water
Centrale voorziening
CV-ketel
Bouw
Soort woning
Woonhuis
Soort dak
Zadeldak
Bouwjaar
1993
Voorzieningen
Mechanische ventilatie, Rolluiken, Tv kabel, Airconditioning, Dakraam, Glasvezel kabel, Zonnepanelen
Indeling
Aantal slaapkamers
4
Aantal badkamers
1
Buitenruimte
Tuintypen
Achtertuin
Ligging tuin
Oost
Totale oppervlakte
84 m²
Oppervlakte en inhoud
Woonoppervlakte
127 m²
Gebonden buitenruimte
3 m²
Perceeloppervlakte
231 m²
Inhoud
451 m³
Parkeren
Soorten
Op eigen terrein
Soort garage
Geen garage
Locatie
Adres
Theo van Doesburgstraat 29
Postcode
7545 RG
Plaats
Enschede
Provincie
Ligging
Aan rustige weg, In woonwijk
Berging
Soort
Aangebouwd hout
Plattegronden
No items found.
De omgeving
Voorzieningen in de buurt
Locatie
Supermarkt
Eten & drinken
Middelbare school
Basisschool
Openbaar vervoer
Interesse?
Vul onderstaand formulier in  en wij nemen contact op.
Naam *
E-mailadres *
Telefoonnummer *
Bericht
Thank you! Your submission has been received!
Oeps! Er is iets misgegaan bij het verzenden van het formulier.
Op zoek naar een nieuwe woning?
Schrijf je in als woningzoekende en word als eerste op de hoogte gebracht van het nieuwe aanbod.
Schrijf je nu in
Op zoek naar een nieuwe woning?
Word als eerste op de hoogte gebracht van het nieuwe aanbod.
Bedankt voor je inschrijving!
We bezorgen het nieuws in jouw inbox
Oeps! Er is iets misgegaan bij het verzenden van het formulier.