Bekijk alle foto’s
No items found.
No items found.
No items found.
No items found.
Beschikbaar
Lipperkerkstraat 295, Enschede
E
199000
p.m.
k.k.
2 slaapkamers
1899
89 m² woonoppervlakte
Energielabel E
Weet je een potentiële koper?
Bekijk de unieke website
Ben je geïnteresseerd in deze woning?
Neem contact op
Kenmerken
Omschrijving

Lipperkerkstraat 295 te Enschede is nu beschikbaar en biedt een unieke kans voor de echte aanpakker. Deze woning heeft veel potentie en wacht op iemand die haar weer nieuw leven inblaast.

Ben jij niet bang om de handen uit de mouwen te steken? Dan kan deze woning uitgroeien tot een prachtige plek om te wonen. Achter de gevel met karakteristiek metselwerk en sfeervolle details schuilt namelijk volop potentie. Binnen vind je nog diverse authentieke elementen, zoals hoge plafonds, paneeldeuren en een klassieke indeling met voor- en achterkamer. De voormalige opkamer is inmiddels verwijderd, waardoor er extra leefruimte is ontstaan en mogelijkheden zijn gecreëerd voor het samenvoegen van de voor- en achterkamer.

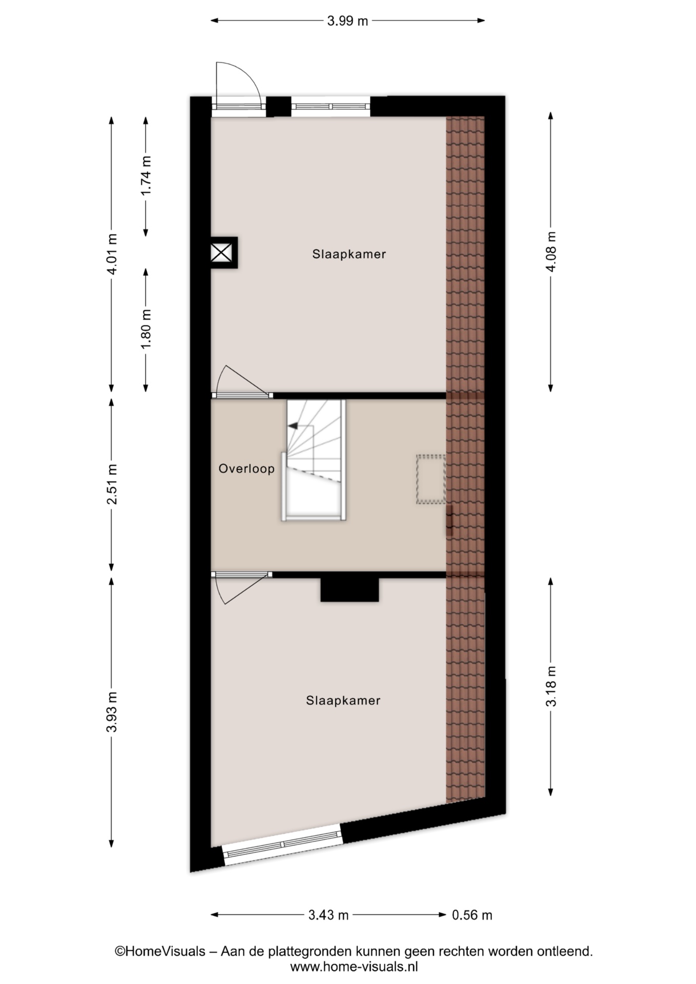
Wanneer de klassieke trap oploopt kom je op de ruime overloop welke mogelijkheid biedt (met het plaatsen van een dakkapel) voor een derde slaapkamer of een badkamer op de verdieping. Verder biedt de overloop toegang tot twee ruime slaapkamers waarvan er één beschikt over een wastafel.

Het perceel is verrassend diep en ligt gunstig op het noorden. De tuin vraagt om een volledige herinrichting, maar biedt daarmee alle kansen om er een fijne buitenruimte van te maken.

Deze woning heeft veel potentie! Voor de handige koper ligt hier echter een mooie kans om alles geheel naar eigen wens te realiseren.

De ligging is praktisch: aan de rand van Velve-Lindenhof, met winkels, scholen, sportvoorzieningen en uitvalswegen in de directe omgeving. Ook het centrum van Enschede is binnen enkele minuten bereikbaar.

Indeling
Begane grond: entree, voorkamer met meterkast, hal met trapopgang en toegang tot de kelder, achterkamer, dichte keuken met eenvoudig keukenblok en CV-opstelling, achterportaal met toilet en badkamer voorzien van douche en wastafel.

Eerste verdieping: ruime overloop en twee slaapkamers.

Bijzonderheden:
- Bouwjaar: 1899
- Woonoppervlakte: 89 m².
- Inhoud: 339 m³.
- Perceeloppervlakte: 194 m².
- Voor de echte klussers onder ons!
- Fraaie en authentieke voorgevel.
- Mooie op het noorden georiënteerde achtertuin met achterom.
- Op steenworp afstand van het stadscentrum van Enschede gelegen.
- Deze woning heeft een WOZ waarde die onder de € 365.000,- ligt. Dat betekent dat deze woning onder de ’opkoopbescherming’ van de Gemeente Enschede valt en alleen aangekocht kan worden voor eigen bewoning. Deze regeling vind je op www.enschede.nl/opkoopbescherming.

In de koopovereenkomst zullen de navolgende zaken worden opgenomen:
- Schriftelijkheidsvereiste: partijen zijn pas gebonden niet eerder dan dat er een schriftelijke koopovereenkomst is getekend door partijen.
- Asbestclausule.
- Opkoopbescherming.
- Niet-zelf bewoningsclausule.
- As-is clausule.
- Het stellen van een bankgarantie/waarborgsom ter grootte van 10% van de koopsom.

Aanvaarding: in overleg en kan per direct.

Interesse in dit huis? Schakel direct uw eigen NVM- aankoopmakelaar in. Uw NVM- aankoop makelaar komt op voor uw belang en bespaart u tijd, geld en zorgen.
Adressen van collega NVM- aankoopmakelaars in Twente vindt u op de website van NVM.

Algemeen
Koopprijs
199000
p.m.
k.k.
Status
Beschikbaar
Aanvaarding
In Overleg
Energierapport
Energieklasse
E
Isolatie
Grotendeels Dubbelglas
Verwarming
Cv Ketel
Warm water
Cv Ketel
CV-ketel
HR-ketel
Bouw
Soort woning
Woonhuis
Soort dak
Zadeldak
1899
Voorzieningen
Tv Kabel, Rookkanaal, Dakraam, Glasvezel Kabel, Natuurlijke Ventilatie
Indeling
Aantal slaapkamers
2
Aantal badkamers
1
Buitenruimte
Tuintypen
Achtertuin
Ligging tuin
Noord
Totale oppervlakte
77 m²
Oppervlakte en inhoud
Woonoppervlakte
89 m²
Gebonden buitenruimte
0 m²
Perceeloppervlakte
135 m²
Inhoud
339 m³
Parkeren
Soorten
Openbaar Parkeren
Soort garage
Geen Garage
Locatie
Adres
Lipperkerkstraat 295
Postcode
7533 AB
Plaats
Enschede
Provincie
Overijssel
Ligging
Aan Rustige Weg
Berging
Soort
Plattegronden
No items found.
De omgeving
Voorzieningen in de buurt
Locatie
Supermarkt
Eten & drinken
Middelbare school
Basisschool
Openbaar vervoer
Interesse?
Vul onderstaand formulier in  en wij nemen contact op.
Naam *
E-mailadres *
Telefoonnummer *
Bericht
Thank you! Your submission has been received!
Oeps! Er is iets misgegaan bij het verzenden van het formulier.
Op zoek naar een nieuwe woning?
Schrijf je in als woningzoekende en word als eerste op de hoogte gebracht van het nieuwe aanbod.
Schrijf je nu in
Op zoek naar een nieuwe woning?
Word als eerste op de hoogte gebracht van het nieuwe aanbod.
Bedankt voor je inschrijving!
We bezorgen het nieuws in jouw inbox
Oeps! Er is iets misgegaan bij het verzenden van het formulier.