Foto woning Hulststraat 8 1
Bekijk alle foto’s
No items found.
No items found.
No items found.
No items found.
Verkocht onder voorbehoud
Hulststraat 8, Enschede
D
315000
p.m.
k.k.
4 slaapkamers
Bouwjaar 1941
87 m² woonoppervlakte
Energielabel D
Weet je een potentiële koper?
Bekijk de unieke website
Ben je geïnteresseerd in deze woning?
Neem contact op
Kenmerken
Omschrijving

Begin een nieuw hoofdstuk in dit charmante, halfvrijstaande familiehuis aan de Hulststraat in Enschede. Gebouwd in 1941 en door de jaren heen zorgvuldig onderhouden en deels gerenoveerd, combineert deze woning karakter met comfort. Met een woonoppervlakte van 87 m² (exclusief de zolderverdieping van 9 m²), vier slaapkamers, een sfeervolle houtkachel en een ruime tuin van maar liefst 97 m², is dit het ideale thuis voor wie op zoek is naar rust, ruimte en stadse gemakken binnen handbereik.

Alle voorzieningen bevinden zich in de directe omgeving: winkels, scholen, sportvoorzieningen en openbaar vervoer. Ook de uitvalswegen richting het centrum van Enschede en omliggende plaatsen zijn uitstekend bereikbaar. Hier woon je rustig, maar toch dicht bij alles wat je nodig hebt.

Deze karakteristieke twee-onder-één-kapwoning biedt een prettige indeling en een solide bouwkwaliteit. De woning beschikt over muur- en gedeeltelijke dakisolatie en HR-glas (energielabel D). Verwarming en warm water geschiedt via een eigen cv-installatie en daarnaast is er een sfeervolle houtkachel aanwezig. Zowel binnen als buiten verkeert de woning in goede staat van onderhoud, kunststof kozijnen en ramen (2023), instapklaar, maar met genoeg ruimte om het naar eigen smaak te maken.

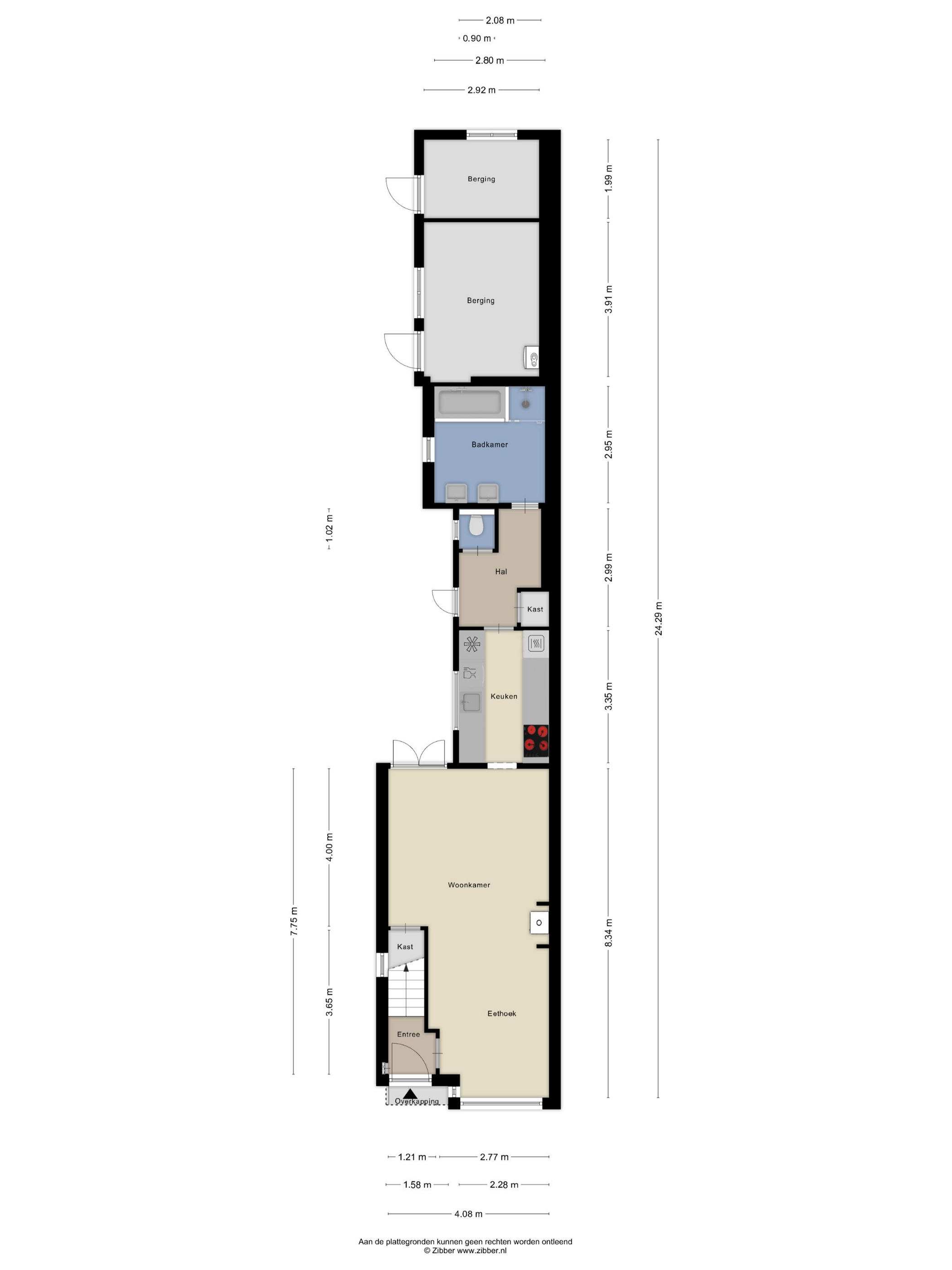
Bij binnenkomst betreed je de lichte woonkamer van circa 28 m², met voldoende ruimte voor een gezellige zithoek en eethoek. De houtkachel zorgt voor extra sfeer tijdens de koudere maanden. De aangrenzende keuken (circa 8 m²) is geplaatst in 2024 en biedt alles wat je nodig hebt voor dagelijks gebruik en heeft direct contact met de achtertuin. Daarnaast is op de begane grond De badkamer te vinden. Deze is royaal opgezet (circa 8 m²) en voorzien van een ligbad, douche, toilet en dubbele wastafel.

Op de eerste verdieping bevinden zich drie slaapkamers van goede afmetingen, ideaal voor een gezin of werk-/logeerfunctie. De zolderverdieping is bereikbaar met een vaste trap en biedt ruimte voor een vierde slaapkamer. De zolder is voorzien van bergruimten middels knieschotten en heeft een dakraam.

De woning beschikt over zowel een voor- als achtertuin, waarbij de hoofdtuin op het noordoosten is gelegen. Met een totale oppervlakte van circa 97 m² is er volop ruimte om te ontspannen, te tuinieren of om kinderen te laten spelen. Achterin de tuin bevindt zich een stenen berging met elektra, perfect voor fietsen, opslag of als kleine werkplaats.

Bijzonderheden:
- Bouwjaar: 1941.
- Woonoppervlakte: 87 m². Oppervlakte zolderverdieping ca. 9 m².
- Perceeloppervlakte: 182 m²
- Netjes onderhouden.
- De keuken is geplaatst in 2024 en van alle gemakken voorzien.
- Kunststof kozijnen en ramen met HR++ beglazing (2023).
- Gedeeltelijk voorzien van sfeervolle markiezen.
- Vier slaapkamers, ideaal voor gezinnen.
- Achtertuin op het noordoosten met stenen berging en achterom.

In de koopovereenkomst zullen de navolgende zaken worden opgenomen:
- Schriftelijkheidsvereiste: partijen zijn pas gebonden niet eerder dan dat er een schriftelijke koopovereenkomst is getekend door partijen.
- Ouderdomsclausule.
- Asbestclausule.
- Niet zelf-bewoningsclausule.
- Het stellen van een bankgarantie/waarborgsom ter grootte van 10% van de koopsom.

Interesse in dit huis? Schakel direct uw eigen NVM- aankoopmakelaar in. Uw NVM- aankoop makelaar komt op voor uw belang en bespaart u tijd, geld en zorgen.
Adressen van collega NVM- aankoopmakelaars in Twente vindt u op de website van NVM.
Ligging nabij scholen, winkels en openbaar vervoer

Aanvaarding: in overleg

Algemeen
Koopprijs
315000
p.m.
k.k.
Status
Verkocht onder voorbehoud
Aanvaarding
In overleg
Energierapport
Energieklasse
D
Isolatie
Dakisolatie, Muurisolatie, Hr glas
Verwarming
Cv ketel, Houtkachel
Warm water
Cv ketel
CV-ketel
Combi hr
Bouw
Soort woning
Woonhuis
Soort dak
Mansarde dak
Bouwjaar
1941
Voorzieningen
Tv kabel, Buitenzonwering, Rookkanaal, Dakraam, Glasvezel kabel, Natuurlijke ventilatie
Indeling
Aantal slaapkamers
4
Aantal badkamers
1
Buitenruimte
Tuintypen
Achtertuin
Ligging tuin
Noordoost
Totale oppervlakte
97 m²
Oppervlakte en inhoud
Woonoppervlakte
87 m²
Gebonden buitenruimte
1 m²
Perceeloppervlakte
222 m²
Inhoud
403 m³
Parkeren
Soorten
Openbaar parkeren
Soort garage
Geen garage
Locatie
Adres
Hulststraat 8
Postcode
7544 TK
Plaats
Enschede
Provincie
Ligging
Aan rustige weg, In woonwijk
Berging
Soort
Aangebouwd steen
Plattegronden
No items found.
De omgeving
Voorzieningen in de buurt
Locatie
Supermarkt
Eten & drinken
Middelbare school
Basisschool
Openbaar vervoer
Interesse?
Vul onderstaand formulier in  en wij nemen contact op.
Naam *
E-mailadres *
Telefoonnummer *
Bericht
Thank you! Your submission has been received!
Oeps! Er is iets misgegaan bij het verzenden van het formulier.
Op zoek naar een nieuwe woning?
Schrijf je in als woningzoekende en word als eerste op de hoogte gebracht van het nieuwe aanbod.
Schrijf je nu in
Op zoek naar een nieuwe woning?
Word als eerste op de hoogte gebracht van het nieuwe aanbod.
Bedankt voor je inschrijving!
We bezorgen het nieuws in jouw inbox
Oeps! Er is iets misgegaan bij het verzenden van het formulier.