Foto woning Dr Ariënsstraat 115 1
Bekijk alle foto’s
No items found.
No items found.
No items found.
No items found.
Verkocht onder voorbehoud
Dr Ariënsstraat 115, Overdinkel
B
325000
p.m.
k.k.
3 slaapkamers
Bouwjaar 1981
116 m² woonoppervlakte
Energielabel B
Weet je een potentiële koper?
Bekijk de unieke website
Ben je geïnteresseerd in deze woning?
Neem contact op
Kenmerken
Omschrijving

Welkom bij deze fraaie hoekwoning gelegen in een zeer kindvriendelijke woonwijk in Overdinkel, aan de Dr Ariënsstraat 115, vol charme en eigentijdse kenmerken. Met 3 slaapkamers, een royale tuin op het zuiden en een vrijstaande stenen garage met elektrische deur, is dit het perfecte familiehuis. Deze woning straalt een warme sfeer uit, profiteert van modern comfort dankzij onder andere dak-, wand- en vloerisolatie en heeft bovendien een gunstige ligging vlakbij Duitsland.

De woning is gelegen in het rustige en kindvriendelijke Overdinkel, omringd door woningen van vergelijkbare kwaliteit en design. Dichtbij vind je speeltuinen en scholen, ideaal voor gezinnen met kinderen. Bovendien, zijn openbaar vervoer en lokale winkels op loopafstand, wat het dagelijks leven een stuk makkelijker maakt.

De woning, gebouwd in 1981, biedt een perceeloppervlak van 272 m². Het betreft een hoekwoning met 4 kamers, waarvan 3 slaapkamers. 4e slaapkamer op de zolder is mogelijk! De ketel is van het merk Remeha en stamt uit 2020. De woning is goed onderhouden; zowel het interieur als het exterieur is in goede staat. Het huis heeft een energielabel B, mede door de dak-, muur-, en vloerisolatie en het triple glas.

Op de begane grond vind je een ruime en lichte woonkamer met grote ramen die uitkijken op het groen aan de voorzijde. De open keuken, met moderne inbouwapparatuur, zorgt voor een sociale kookervaring.

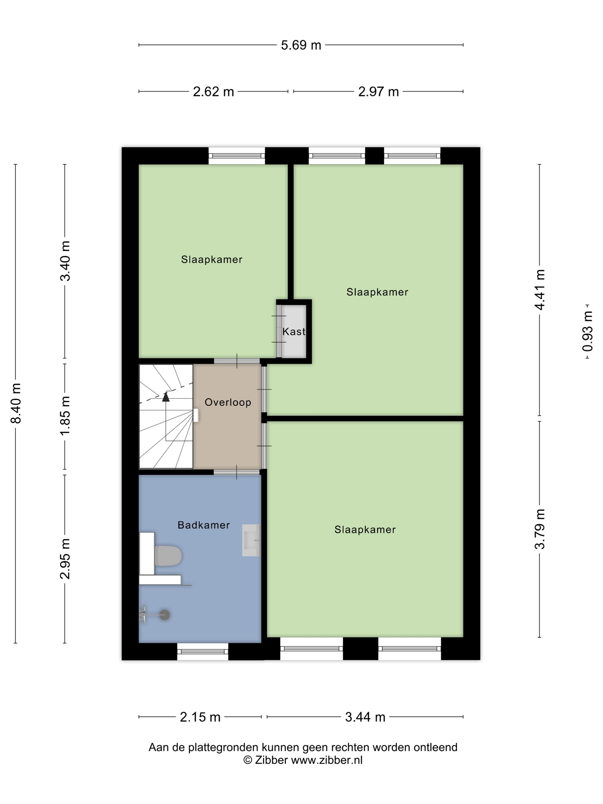
Op de eerste verdieping tref je de 3 slaapkamers aan, waarvan de master bedroom beschikt over een airco. Ook de badkamer vind je op deze verdieping, welke is voorzien van een inloopdouche en een wastafelmeubel.

De woning heeft een zonnige zijtuin op het zuiden, wat zorgt voor een licht huis en een heerlijk zonnige tuin waar je van vroeg in de lente tot laat in de herfst kan genieten van het buitenleven. De tuin is onderhoudsvriendelijk aangelegd en heeft een achterom. Daarnaast beschikt de woning over een vrijstaande stenen garage.

In de omgeving is er voldoende openbare parkeergelegenheid en de oprit biedt plaats aan meerdere auto's. De woning beschikt ook over extra voorzieningen zoals mechanische ventilatie, rolluiken, tv-kabel, airconditioning en een glasvezelkabel.

Enkele bijzonderheden van de woning op een rij:
- Vrijstaande stenen garage.
- Unieke ligging nabij Duitsland.
- 3 slaapkamers.
- Tuin op het zuiden.
- Kunststof kozijnen.
- Woonoppervlakte: 116 m².
- Inhoud: 410 m³.
- Perceelsoppervlakte: 272 m².

Deze woning in Overdinkel biedt een uitstekende gelegenheid voor starters, alleenstaanden, stellen en gezinnen die op zoek zijn naar een ruime woning in een zeer kindvriendelijke woonwijk. Mis deze kans niet en plan vandaag nog een bezichtiging in bij deze aantrekkelijke woning aan de Dr Ariënsstraat 115 in Overdinkel. Wij nodigen je van harte uit om dit grondig te bekijken.

In de koopovereenkomst zullen de navolgende zaken worden opgenomen:
- Schriftelijkheidsvereiste: partijen zijn pas gebonden niet eerder dan dat er een schriftelijke koopovereenkomst is getekend door partijen.
- Het stellen van een bankgarantie/waarborgsom ter grootte van 10% van de koopsom.
- Ouderdomsclausule.
- Asbestclausule.

Aanvaarding: in overleg.

Interesse in dit huis? Schakel direct uw eigen NVM- aankoopmakelaar in. Uw NVM- aankoop makelaar komt op voor uw belang en bespaart u tijd, geld en zorgen.
Adressen van collega NVM- aankoopmakelaars in Twente vindt u op de website van NVM Twente.

Algemeen
Koopprijs
325000
p.m.
k.k.
Status
Verkocht onder voorbehoud
Aanvaarding
In overleg
Energierapport
Energieklasse
B
Isolatie
Dakisolatie, Muurisolatie, Vloerisolatie, Driedubbel glas
Verwarming
Cv ketel
Warm water
Cv ketel
CV-ketel
Bouw
Soort woning
Woonhuis
Soort dak
Zadeldak
Bouwjaar
1981
Voorzieningen
Mechanische ventilatie, Rolluiken, Tv kabel, Airconditioning, Glasvezel kabel
Indeling
Aantal slaapkamers
3
Aantal badkamers
1
Buitenruimte
Tuintypen
Zijtuin
Ligging tuin
Zuid
Totale oppervlakte
138 m²
Oppervlakte en inhoud
Woonoppervlakte
116 m²
Gebonden buitenruimte
2 m²
Perceeloppervlakte
272 m²
Inhoud
410 m³
Parkeren
Soorten
Openbaar parkeren, Op eigen terrein
Soort garage
Vrijstaand steen
Locatie
Adres
Dr Ariënsstraat 115
Postcode
7586 EP
Plaats
Overdinkel
Provincie
Ligging
In woonwijk, Vrij uitzicht
Berging
Soort
Plattegronden
No items found.
De omgeving
Voorzieningen in de buurt
Locatie
Supermarkt
Eten & drinken
Middelbare school
Basisschool
Openbaar vervoer
Interesse?
Vul onderstaand formulier in  en wij nemen contact op.
Naam *
E-mailadres *
Telefoonnummer *
Bericht
Thank you! Your submission has been received!
Oeps! Er is iets misgegaan bij het verzenden van het formulier.
Op zoek naar een nieuwe woning?
Schrijf je in als woningzoekende en word als eerste op de hoogte gebracht van het nieuwe aanbod.
Schrijf je nu in
Op zoek naar een nieuwe woning?
Word als eerste op de hoogte gebracht van het nieuwe aanbod.
Bedankt voor je inschrijving!
We bezorgen het nieuws in jouw inbox
Oeps! Er is iets misgegaan bij het verzenden van het formulier.