Foto woning Hoogstraat 15 1
Bekijk alle foto’s
No items found.
No items found.
No items found.
No items found.
Verkocht onder voorbehoud
Hoogstraat 15, Enschede
C
275000
p.m.
k.k.
3 slaapkamers
Bouwjaar 1906
75 m² woonoppervlakte
Energielabel C
Weet je een potentiële koper?
Bekijk de unieke website
Ben je geïnteresseerd in deze woning?
Neem contact op
Kenmerken
Omschrijving

Hoogstraat 15 te Enschede. Karaktervolle hoekwoning op een toplocatie nabij het centrum van Enschede.

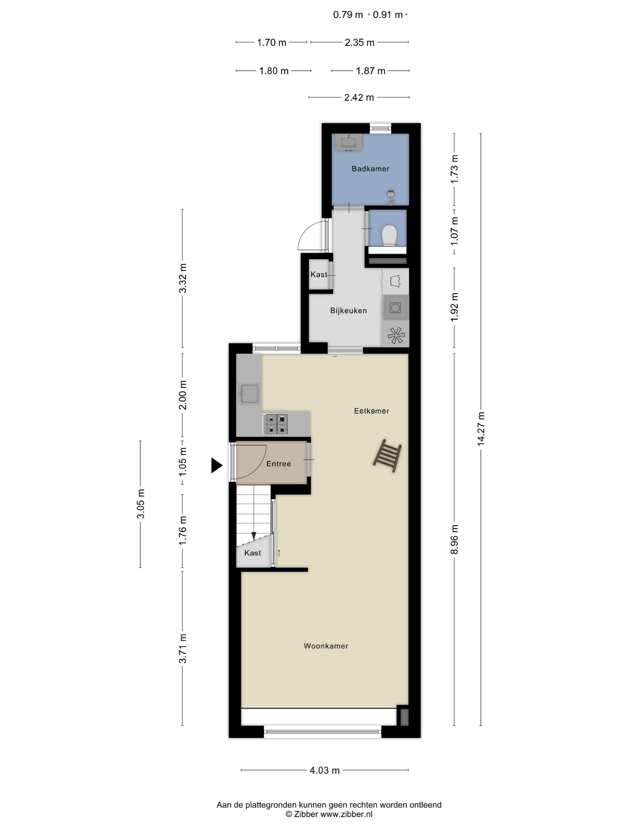
Op een charmante locatie, op loopafstand van het bruisende stadscentrum van Enschede, staat deze karaktervolle hoekwoning met een verrassend speelse indeling. De woning ademt sfeer dankzij authentieke details, hoge plafonds en een bijzondere vide die niet alleen zorgt voor een ruimtelijk gevoel, maar ook een extra plek creëert waar je kunt werken, spelen of ontspannen met uitzicht op de woonkamer.

De leefruimte is licht en open, met een warme houten vloer en een naadloze overgang naar de open keuken. Deze is voorzien van een gaskookplaat, afzuigkap en oven. Aansluitend bevindt zich een praktische bijkeuken met aansluiting voor de wasmachine en biedt het toegang tot de achterentree. Vanuit hier bereik je het moderne toilet en de strak afgewerkte badkamer, compleet met inloopdouche, wastafel en designradiator, sfeervol verlicht met inbouwspots.

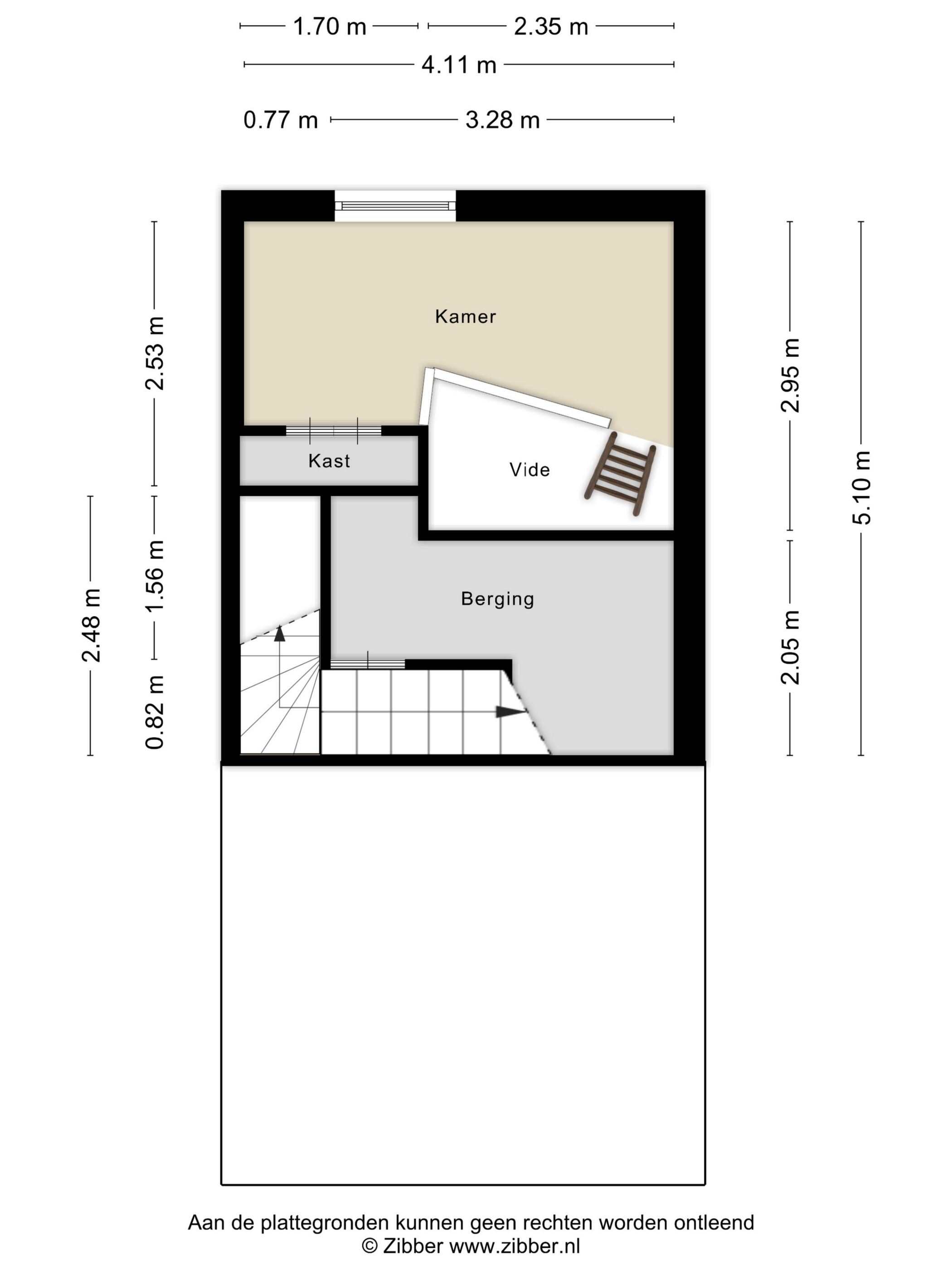
Een bijzondere toevoeging aan de woning is de ruime vide in de woonkamer, bereikbaar via een ladder. Dankzij het grote raam en een ingebouwde kast is dit een functionele en gezellige plek. Daarnaast is via de hal een extra bergruimte bereikbaar, ideaal voor het opbergen van spullen.

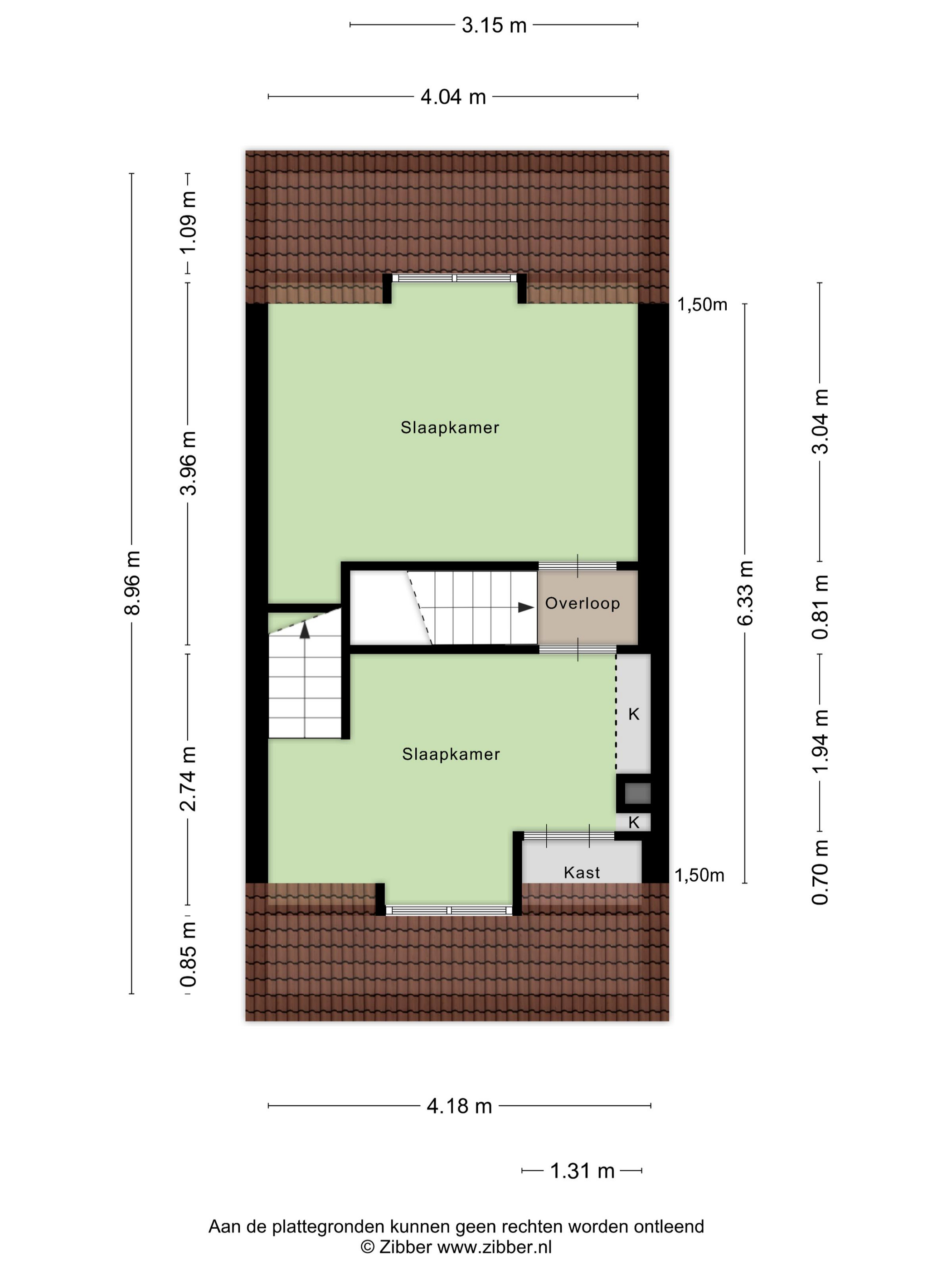
Op de eerste verdieping vind je twee ruime en lichte slaapkamers met dakkapellen en handige inbouwkasten die zorgen voor voldoende opbergruimte. Via een slaapkamer bereik je via een vaste steektrap de zolderverdieping met een derde slaapkamer voorzien van een dakkapel en dakraam.

De achtertuin is onderhoudsvriendelijk aangelegd met sierbestrating en een klein gazon, en biedt volop privacy. Aan de achterzijde van de tuin bevindt zich een overdekt terras, waar je heerlijk buiten kunt zitten, ongeacht het weer. Via dit terras heb je toegang tot een ruime berging, ideaal voor fietsen en tuingereedschap. De tuin is tevens bereikbaar via een achterom.

Deze woning uit 1906 is met oog voor detail afgewerkt en slim ingedeeld, met volop bergruimte, drie fijne slaapkamers en een charmante vide. De ligging is zeer gunstig: rustig, maar toch vlak bij het centrum, scholen, openbaar vervoer en de uitvalswegen richting de A35. Binnen enkele minuten wandel je naar twee nabijgelegen parken of de stad in voor een hapje of een boodschap.

Bijzonderheden:
- Bouwjaar 1906.
- Woonoppervlakte: 75 m².
- Perceeloppervlakte 136 m².
- Speels ingedeelde hoekwoning.
- Goed onderhouden.
- Een smaak- en aandachtsvolle afwerking, met oog voor detail!
- De woning is voorzien van muurisolatie (voorzet) in de woonkamer, dakisolatie en dubbele beglazing.
- Op loopafstand van het centrum van Enschede en 2 parken.
- Drie slaapkamers en charmante vide in de woonkamer (werk- of speelplek).
- Fijne achtertuin met een achterom, een overkapt terras en een ruime berging.
- Energielabel C.
- Handig ingedeeld met veel bergruimte.
- Ligging op loopafstand van het stadscentrum van Enschede.

In de koopovereenkomst zullen de navolgende zaken worden opgenomen:
- Schriftelijkheidsvereiste: partijen zijn pas gebonden niet eerder dan dat er een schriftelijke koopovereenkomst is getekend door partijen.
- Ouderdomsclausule.
- Asbestclausule.
- Het stellen van een bankgarantie/waarborgsom ter grootte van 10% van de koopsom.
- Opkoopbescherming.

Aanvaarding: in overleg.

Interesse in dit huis? Schakel direct uw eigen NVM- aankoopmakelaar in. Uw NVM- aankoop makelaar komt op voor uw belang en bespaart u tijd, geld en zorgen.
Adressen van collega NVM- aankoopmakelaars in Twente vindt u op de website van NVM Twente.

Algemeen
Koopprijs
275000
p.m.
k.k.
Status
Verkocht onder voorbehoud
Aanvaarding
In overleg
Energierapport
Energieklasse
C
Isolatie
Dakisolatie, Muurisolatie, Dubbel glas
Verwarming
Cv ketel
Warm water
Cv ketel
CV-ketel
Combi hr
Bouw
Soort woning
Woonhuis
Soort dak
Zadeldak
Bouwjaar
1906
Voorzieningen
Tv kabel, Airconditioning, Dakraam, Glasvezel kabel, Natuurlijke ventilatie
Indeling
Aantal slaapkamers
3
Aantal badkamers
1
Buitenruimte
Tuintypen
Achtertuin
Ligging tuin
Oost
Totale oppervlakte
35 m²
Oppervlakte en inhoud
Woonoppervlakte
75 m²
Gebonden buitenruimte
Perceeloppervlakte
136 m²
Inhoud
355 m³
Parkeren
Soorten
Betaald parkeren, Parkeervergunningen
Soort garage
Geen garage
Locatie
Adres
Hoogstraat 15
Postcode
7512 GV
Plaats
Enschede
Provincie
Ligging
Aan rustige weg, In centrum, In woonwijk
Berging
Soort
Vrijstaand steen
Plattegronden
No items found.
De omgeving
Voorzieningen in de buurt
Locatie
Supermarkt
Eten & drinken
Middelbare school
Basisschool
Openbaar vervoer
Interesse?
Vul onderstaand formulier in  en wij nemen contact op.
Naam *
E-mailadres *
Telefoonnummer *
Bericht
Thank you! Your submission has been received!
Oeps! Er is iets misgegaan bij het verzenden van het formulier.
Op zoek naar een nieuwe woning?
Schrijf je in als woningzoekende en word als eerste op de hoogte gebracht van het nieuwe aanbod.
Schrijf je nu in
Op zoek naar een nieuwe woning?
Word als eerste op de hoogte gebracht van het nieuwe aanbod.
Bedankt voor je inschrijving!
We bezorgen het nieuws in jouw inbox
Oeps! Er is iets misgegaan bij het verzenden van het formulier.