Bekijk alle foto’s
No items found.
No items found.
No items found.
No items found.
Beschikbaar
Hofkamp 257, Losser
A
289000
p.m.
k.k.
3 slaapkamers
1985
105 m² woonoppervlakte
Energielabel A
Weet je een potentiële koper?
Bekijk de unieke website
Ben je geïnteresseerd in deze woning?
Neem contact op
Kenmerken
Omschrijving

Hofkamp 257 te Losser staat te koop!

Deze leuke tussenwoning, gelegen aan een rustige straat in Losser, wacht op jou! Met een vraagprijs van € 289.000, - k.k., biedt dit pand een reeks aantrekkelijke kenmerken zoals zonnepanelen, energielabel A, een zonnige tuin met 2 overkappingen en 3 slaapkamers (4de mogelijk). De comfortabele open keuken is uitgerust met ingebouwde apparaten en de heteluchtverwarming zorgt voor warmte en gezelligheid in het huis. Maak gebruik van deze unieke kans om dit huis jouw thuis te maken!

Gelegen in Losser, een gezellig dorp met veel gezinnen, is de Hofkamp 257 perfect gelegen. Rustige wegen en een woongebied bepalen de omgeving, terwijl nabijgelegen scholen en speeltuinen voor de kinderen zorgen. Dit is echt een woonwijk waar je kunt genieten van rust en veiligheid.

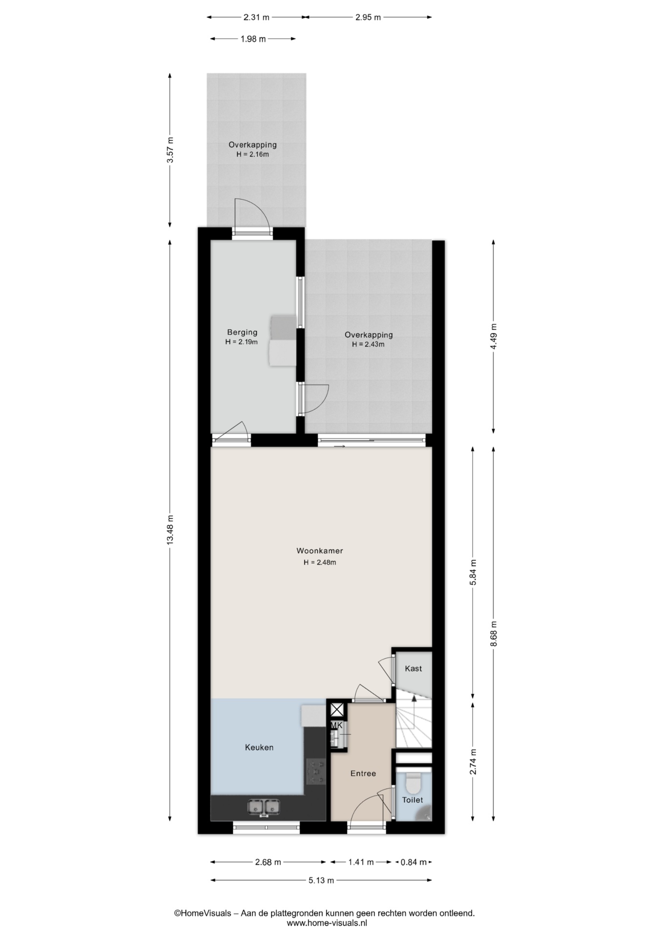
Je komt binnen in de hal waar je ook het toilet met fonteintje vind en de meterkast. De woonkamer biedt de ruimte voor een ruime bank om bij te komen en vanuit hier kun je door de schuifpui naar de aangebouwde overkapping. De open keuken, uitgerust met ingebouwde apparaten, nodigt uit tot gezellige kookavonden. Vanuit de woonkamer kom je in de aangebouwde berging welke ideaal is voor opslag of als bijkeuken. Vanuit hier kom je ook in de gezellige overkapping voor lange avonden met vrienden of familie.

Op de eerste verdieping vind je drie slaapkamers waarvan 2 verruimd zijn door een opbouw (2009) aan de achterzijde. De badkamer is voorzien van een douche, toilet en wastafel. Deze kan geheel naar eigen smaak en wens geüpdatet worden.

Op de tweede verdieping vind je thans een open zolder echter kan hier gemakkelijk een 4e slaapkamer of werkkamer worden gerealiseerd.

Voor- en achterkant zijn beide voorzien van een tuin, deze geven je de mogelijkheid om te genieten van zonnige en schaduwrijke plekjes. De achtertuin, de hoofdtuin op het oosten, is voorzien van 2 overkappingen en een gemakkelijke achterom.

In deze buurt is parkeren openbaar, er is altijd voldoende ruimte voor jou en je bezoekers.

Bijzonderheden:
- Bouwjaar 1985.
- Woonoppervlakte: 105 m2.
- Inhoud: 393m3
- Perceelsoppervlakte: 151 m2.
- Volledig geïsoleerd met energielabel A.
- Gelegen op loopafstand van het centrum van Losser.
- Drie slaapkamers, vierde mogelijk op zolder, ideaal voor gezinnen.
- Voorzien van maar liefst 11 zonnepanelen.

In de koopovereenkomst zullen de navolgende zaken worden opgenomen:
- Schriftelijkheidsvereiste: partijen zijn pas gebonden niet eerder dan dat er een schriftelijke koopovereenkomst is getekend door partijen.
- Ouderdomsclausule.
- Het stellen van een bankgarantie/waarborgsom ter grootte van 10% van de koopsom.

Aanvaarding: in overleg.

Interesse in dit huis? Schakel direct uw eigen NVM- aankoopmakelaar in. Uw NVM- aankoop makelaar komt op voor uw belang en bespaart u tijd, geld en zorgen.
Adressen van collega NVM- aankoopmakelaars in Twente vindt u op de website van NVM Twente.

Algemeen
Koopprijs
289000
p.m.
k.k.
Status
Beschikbaar
Aanvaarding
In Overleg
Energierapport
Energieklasse
A
Isolatie
Dakisolatie, Muurisolatie, Vloerisolatie, Dubbel Glas
Verwarming
Hete Lucht Verwarming
Warm water
Cv Ketel
CV-ketel
Bouw
Soort woning
Woonhuis
Soort dak
Zadeldak
1985
Voorzieningen
Rolluiken, Tv Kabel, Buitenzonwering, Schuifpui, Glasvezel Kabel, Zonnepanelen
Indeling
Aantal slaapkamers
3
Aantal badkamers
1
Buitenruimte
Tuintypen
Achtertuin, Voortuin
Ligging tuin
Oost
Totale oppervlakte
35 m²
Oppervlakte en inhoud
Woonoppervlakte
105 m²
Gebonden buitenruimte
22 m²
Perceeloppervlakte
151 m²
Inhoud
393 m³
Parkeren
Soorten
Openbaar Parkeren
Soort garage
Geen Garage
Locatie
Adres
Hofkamp 257
Postcode
7582 GT
Plaats
Losser
Provincie
Overijssel
Ligging
Aan Rustige Weg, In Woonwijk
Berging
Soort
Aangebouwd Steen
Plattegronden
No items found.
De omgeving
Voorzieningen in de buurt
Locatie
Supermarkt
Eten & drinken
Middelbare school
Basisschool
Openbaar vervoer
Interesse?
Vul onderstaand formulier in  en wij nemen contact op.
Naam *
E-mailadres *
Telefoonnummer *
Bericht
Thank you! Your submission has been received!
Oeps! Er is iets misgegaan bij het verzenden van het formulier.
Op zoek naar een nieuwe woning?
Schrijf je in als woningzoekende en word als eerste op de hoogte gebracht van het nieuwe aanbod.
Schrijf je nu in
Op zoek naar een nieuwe woning?
Word als eerste op de hoogte gebracht van het nieuwe aanbod.
Bedankt voor je inschrijving!
We bezorgen het nieuws in jouw inbox
Oeps! Er is iets misgegaan bij het verzenden van het formulier.